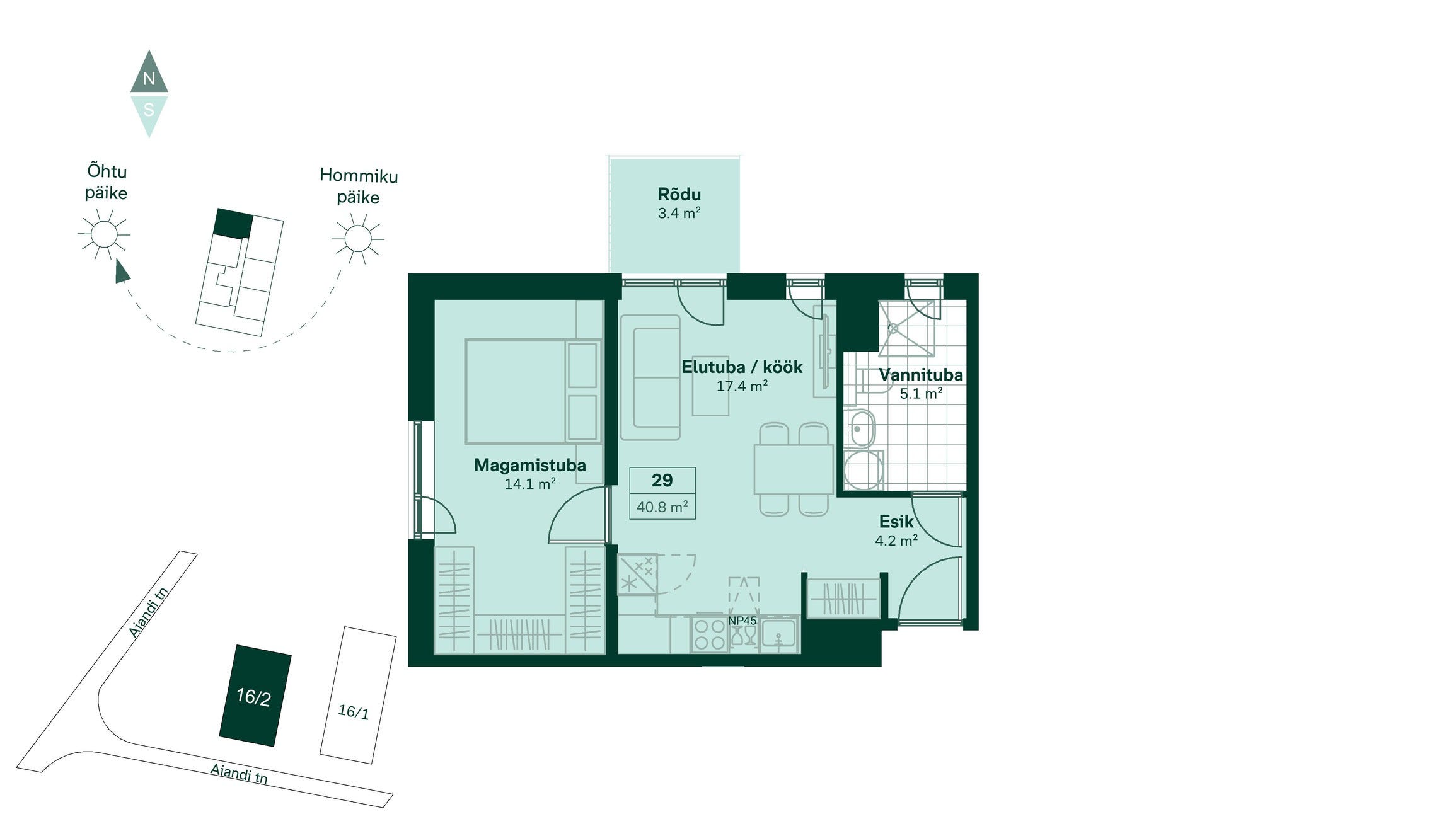
Aiandi 16/2-29, 2 tuba, 40,8 m²
Walk-in garderoobiga magamistuba
Kahjuks on see korter juba müüdud. Otsid midagi sarnast?
Otsi sarnaseid kortereid
Kaardi kuvamine eeldab kolmandate osapoolte küpsiste lubamist
Eripakkumine
Kodu ostuga tasuta köök
Et unistuste kodu sisseseadmine oleks sujuv ja muretu, saad eripakkumisena kodu ostul kaasa Bonava köögimööbli koos -tehnikaga. Pakkumine kehtib Aiandi 14, Aiandi 16 ja Rabaküla 16 möbleerimata kodu ostu puhul 01.10-31.10.2025. Võta ühendust ja küsi lisainfot!
Kampaania
Kindlustunne koos Swedbankiga! Ostes kodu Bonavalt, saad kaasa valida lisandväärtused Swedbankist.
Naabrite lood
Miks valida uus kodu Bonavalt? Tutvu lähemalt meie naabruskondade elanike tagasiside ja teekonnaga uue koduni!
Walk-in garderoobiga magamistuba
.
Kärolin Koitla
Andre Himuškin
"Mulle meeldib elada Uus-Mustamäel, sest siin on nii palju rohelust. See on nii kaasaegne, nii uus ja siin on kõigile midagi," räägib terviseentusiastist kirjanik kaasaegses naabruskonnas elamisest. Vaata videost veel, milline on elu Uus-Mustamäel.
Kaasaegseim elukeskkond Mustamäel
Kodu Uus-Mustamäel on parim valik linnainimesele, kes hindab kaasaegset ja mugavat elukeskkonda. Kolmestes ansamblites loodavad elamud moodustavad ühtse terviku, mille keskmes on majadevaheline puhkeala. Lisaks naabruskonna pargile asub uute kodude kõrval ka mänguväljak väikelastele, kes saavad lõbusalt aega veeta mugavalt kodu juures. Elanikke rõõmustavad majaalused ning kaetud parklad, mis pakuvad autoomanikele lisamugavust ning loovad elanikele turvalise keskkonna.
Pere- ja lastesõbralik naabruskond
Piirkonna ligi 7000-ruutmeetrine hoolikalt planeeritud park, kus kogu pere leiab ühiseid ajaveetmisvõimalusi. Siit leiad mänguväljakud, viljapuud ja piknikuala, kus peale tööd murul või hubases lehtlas lõõgastuda. Tegevusi pakuvad ka välijõusaal ja unikaalne pumptrack trikirada, kus põnevaid elamusi saavad nii kogenumad sõitjad kui esimest korda BMX- või tõukerattal kiiremate ringide katsetajad. Oma kodupargis jagub naabrilastega tegevust ning avastamisrõõmu õhtuhämaruseni.