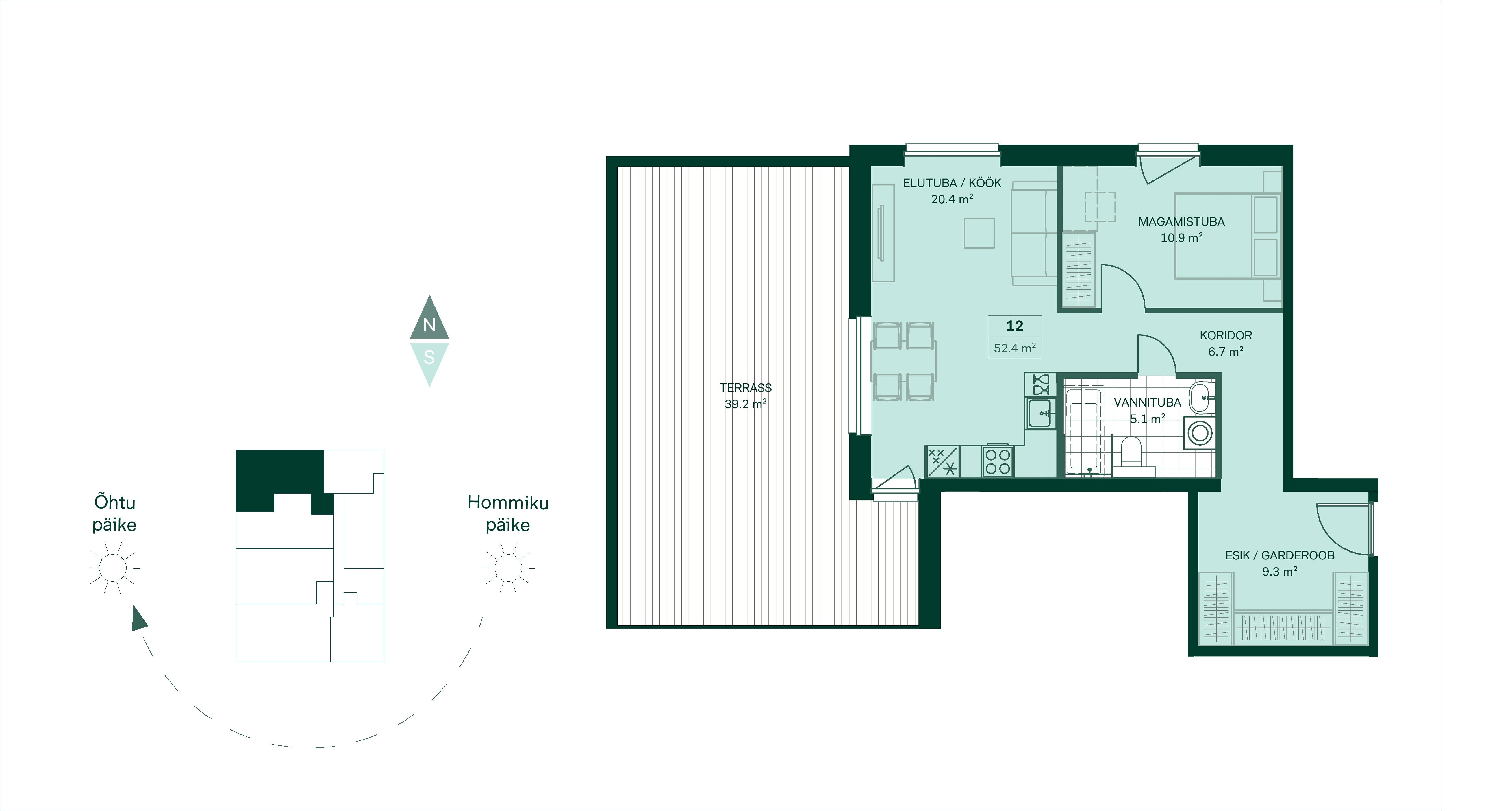
Sõpruse pst 44-12, 2 tuba, 54,8 m²
Kodu on sissekolimiseks valmis
- Bonava /
- Sõpruse pst 44-12
Sõpruse pst 44-12, 2 tuba, 54,8 m²
Sõpruse pst 44Kahjuks on see korter juba müüdud. Otsid midagi sarnast?
Otsi sarnaseid kortereid
Kaardi kuvamine eeldab kolmandate osapoolte küpsiste lubamist
Kodu on sissekolimiseks valmis
Korteri juurde kuulub 1 parkimiskoht suletud majaaluses garaažis hinnaga 10000.-. Parkimiskoha hind lisandub korteri maksumusele. Võta ühendust ja tule kohapeale tutvuma.
Naudi rohelist elukeskkonda
Kristiine linnaosa – see on aed linna südames! Vaid jalutuskäigu kaugusel asuvad pargid ja mänguväljakud pakuvad vaba aja veetmise võimalusi igas vanuses pereliikmetele. Unikaalne Löwenruh’ park on rikas nii looduse kui sündmuste poolest – kevad- ja sügislaat, sibulalaat, toidufestival, muusikasuve tasuta kontserdid. Pere pisematele pakub mängulusti ka Räägu mänguväljak.
Lõõgastu ja naudi hõrke maitseid
Naabruskonna kaubanduslik tõmbenumber on Kristiine keskus, kust leiad hulganisti poode, söögikohti ja laia valiku meelahutust. Sinu uues kodukandis pakuvad avastamisrõõmu ja maitseelamusi ka mitmed eriilmelised kohvikud, mis on kõigest jalutuskäigu kaugusel.
Pere- ja lastesõbralik naabruskond
Naabruskonnas asub mitmeid koole ja lasteaedu, lähim näiteks Tallinna Lilleküla Gümnaasium. Tänu väga heale ühistranspordiühendusele ei jää kaugele ka kesklinna koolid. Samuti on läheduses mitmeid lasteaedu ja huvikoole.
Siseviimistlus nõudlikule maitsele
Uues kodus saab lasta ideed ja unistused lendu. Siseviimistluses on võimalus valida standardlahenduse ning viie eriiilmelise viimistluspaketi seast, mis on professionaalse sisekujundaja poolt hoolikalt koostatud. Soovid mahedaid looduslähedasi toone või eelistad julgemaid aktsentvärve täiendama aegumatut kalasabaparketti? Vali meelepärane viimistluslahendus ning kujunda uus kodu just sulle sobivas stiilis.
Tutvu siseviimistlusvalikute ja -hinnakirjagaKöök on kodu süda
Mõtuse kodu ostes on sul võimalus Bonavalt tellida oma korterisse ka kvaliteetne ja hästi läbimõeldud köögilahendus, mis on paigaldatud juba uue kodu kättesaamisel. Köögi hinna saad lisada kodulaenu sisse, mis mõjutab igakuist laenumakse suurust vähe, aga hoiab ära korraga suurema lisaväljamineku uue kodu kättesaamisel. Valiku saad teha 5 eriilmelise köögistiili hulgast.
Tutvu köögilahendustega