
В продаже
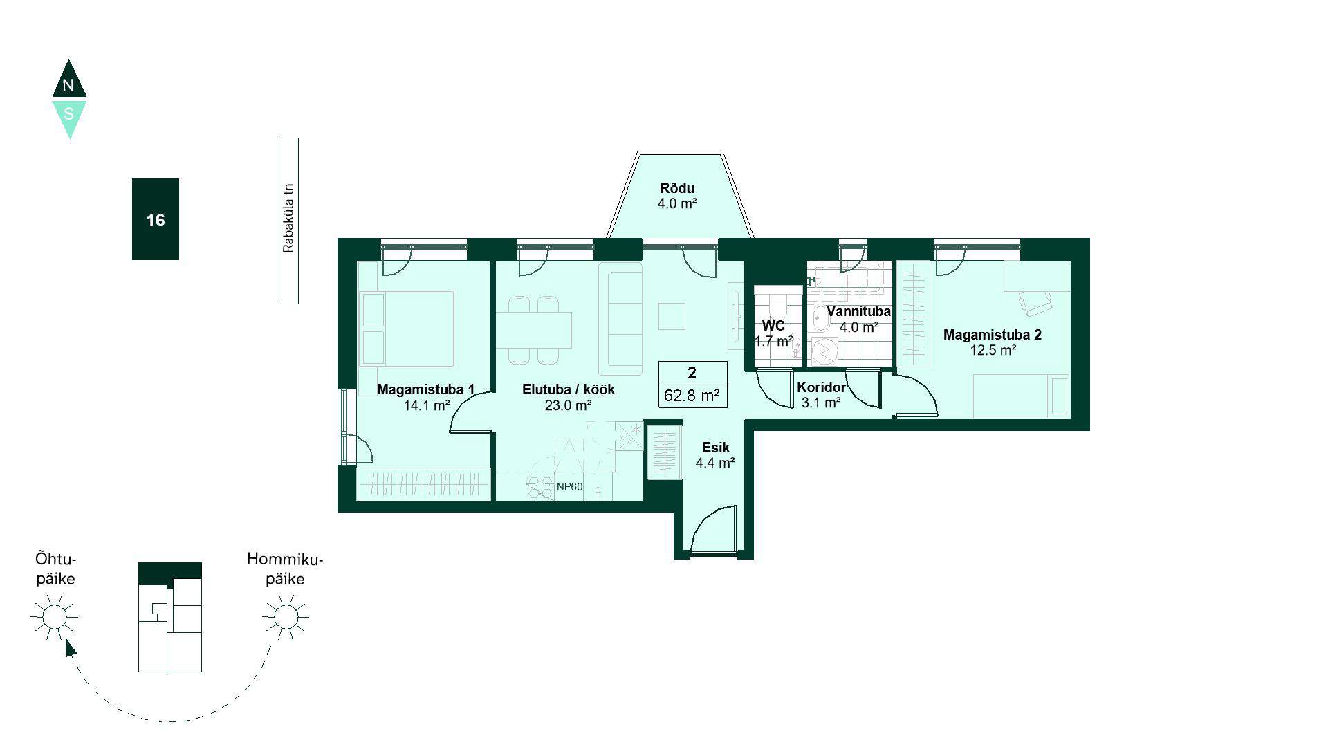
Rabaküla 16-2, 3 комнаты, 62,8 м², 273 990 €

Согласие третьего лица

Кампания
Kухня с техникой в подарок
Чтобы обустройство дома мечты прошло легко и без лишних забот, при покупке квартиры вы получаете в подарок кухонную мебель Bonava с техникой. Специальное предложение действительно при покупке немеблированных квартир в период с 16.02 по 31.03.2026. Свяжитесь с нами и узнайте подробности!

Andre Himuškin

Kärolin Koitla